1997December
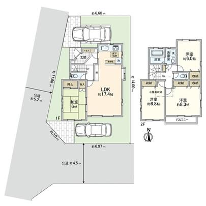
54,900,000 yen, 4LDK, 103.71 sq m
Used Homes » Kanto » Tokyo » Nerima
 
| | Nerima-ku, Tokyo 東京都練馬区 |
| Toei Oedo Line "Hikarigaoka" walk 10 minutes 都営大江戸線「光が丘」歩10分 |
Price 価格 | | 54,900,000 yen 5490万円 | Floor plan 間取り | | 4LDK 4LDK | Units sold 販売戸数 | | 1 units 1戸 | Land area 土地面積 | | 110.04 sq m (registration) 110.04m2(登記) | Building area 建物面積 | | 103.71 sq m (registration) 103.71m2(登記) | Driveway burden-road 私道負担・道路 | | Nothing, South 4.5m width (contact the road width 6.9m), West 5.2m width 無、南4.5m幅(接道幅6.9m)、西5.2m幅 | Completion date 完成時期(築年月) | | December 1997 1997年12月 | Address 住所 | | Nerima-ku, Tokyo Tagara 3 東京都練馬区田柄3 | Traffic 交通 | | Toei Oedo Line "Hikarigaoka" walk 10 minutes 都営大江戸線「光が丘」歩10分
| Person in charge 担当者より | | Rep Takahiro Ito 担当者伊藤隆裕 | Contact お問い合せ先 | | Mitsui Rehouse Nerima shop Mitsui Fudosan Realty (Ltd.) TEL: 0120-774131 [Toll free] Please contact the "saw SUUMO (Sumo)" 三井のリハウス練馬店三井不動産リアルティ(株)TEL:0120-774131【通話料無料】「SUUMO(スーモ)を見た」と問い合わせください | Building coverage, floor area ratio 建ぺい率・容積率 | | Fifty percent ・ Hundred percent 50%・100% | Time residents 入居時期 | | Immediate available 即入居可 | Land of the right form 土地の権利形態 | | Ownership 所有権 | Structure and method of construction 構造・工法 | | Wooden 2-story 木造2階建 | Use district 用途地域 | | One low-rise 1種低層 | Overview and notices その他概要・特記事項 | | Contact: Takahiro Ito, Parking: car space 担当者:伊藤隆裕、駐車場:カースペース | Company profile 会社概要 | | <Mediation> Minister of Land, Infrastructure and Transport (13) No. 000777 (one company) Property distribution management Association (Corporation) metropolitan area real estate Fair Trade Council member Mitsui Rehouse Nerima shop Mitsui Fudosan Realty Co. Yubinbango176-0001 Nerima-ku, Tokyo Nerima 1-4-1 unity forum II7 floor <仲介>国土交通大臣(13)第000777号(一社)不動産流通経営協会会員 (公社)首都圏不動産公正取引協議会加盟三井のリハウス練馬店三井不動産リアルティ(株)〒176-0001 東京都練馬区練馬1-4-1 ユニティフォーラムII7階 |
 Local appearance photo
現地外観写真
 Floor plan
間取り図
Location
|