2000April
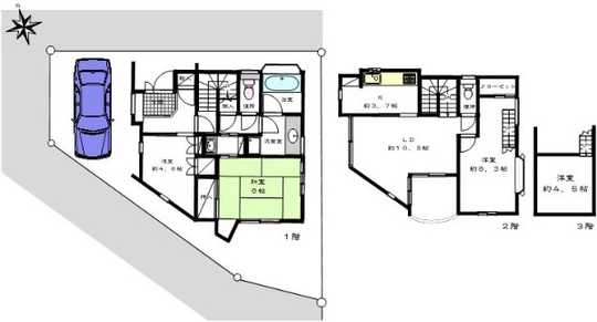
32,800,000 yen, 4LDK, 92.14 sq m
Used Homes » Kanto » Tokyo » Nerima
 
| | Nerima-ku, Tokyo 東京都練馬区 |
| Seibu Ikebukuro Line "Hoya" walk 9 minutes 西武池袋線「保谷」歩9分 |
Price 価格 | | 32,800,000 yen 3280万円 | Floor plan 間取り | | 4LDK 4LDK | Units sold 販売戸数 | | 1 units 1戸 | Land area 土地面積 | | 75.06 sq m (registration) 75.06m2(登記) | Building area 建物面積 | | 92.14 sq m (registration) 92.14m2(登記) | Driveway burden-road 私道負担・道路 | | Nothing, Northeast 4m width (contact the road width 7m), Southwest 4m width 無、北東4m幅(接道幅7m)、南西4m幅 | Completion date 完成時期(築年月) | | April 2000 2000年4月 | Address 住所 | | Nerima-ku, Tokyo Minamiōizumi 5 東京都練馬区南大泉5 | Traffic 交通 | | Seibu Ikebukuro Line "Hoya" walk 9 minutes 西武池袋線「保谷」歩9分
| Person in charge 担当者より | | Rep Kobayashi Ryoji 担当者小林 良次 | Contact お問い合せ先 | | Sumitomo Real Estate Sales Co., Ltd. Oizumigakuen business center TEL: 03-5387-6191 Please contact as "saw SUUMO (Sumo)" 住友不動産販売(株)大泉学園営業センターTEL:03-5387-6191「SUUMO(スーモ)を見た」と問い合わせください | Building coverage, floor area ratio 建ぺい率・容積率 | | Fifty percent ・ Hundred percent 50%・100% | Time residents 入居時期 | | Consultation 相談 | Land of the right form 土地の権利形態 | | Ownership 所有権 | Structure and method of construction 構造・工法 | | Wooden three-story 木造3階建 | Use district 用途地域 | | One low-rise 1種低層 | Other limitations その他制限事項 | | / Terrain: flat /地勢:平坦 | Overview and notices その他概要・特記事項 | | Contact: Kobayashi Ryoji, Parking: car space 担当者:小林 良次、駐車場:カースペース | Company profile 会社概要 | | <Mediation> Minister of Land, Infrastructure and Transport (11) No. 002077 (one company) Real Estate Association (Corporation) metropolitan area real estate Fair Trade Council member Sumitomo Real Estate Sales Co., Ltd. Oizumigakuen business center Yubinbango178-0063 Nerima-ku, Tokyo Higashioizumi 1-37-1 Marukishibiru fourth floor <仲介>国土交通大臣(11)第002077号(一社)不動産協会会員 (公社)首都圏不動産公正取引協議会加盟住友不動産販売(株)大泉学園営業センター〒178-0063 東京都練馬区東大泉1-37-1 マルキシビル4階 |
 Local appearance photo
現地外観写真
 Floor plan
間取り図
Location
|